服务热线:

400-665-0027

知识资讯
联系我们

电话:400-665-0027


您当前位置:首页 > 知识资讯  > 知识学习 > 正文知识学习
KIS云旗舰版新增BOS自定义单据提示输入的文本长度超过了系统的限制保存失败该怎么处理
服务热线:400-665-0027 新购有特价、金蝶老客户升级金蝶云产品可以享受5折优惠,送手机、送话费,好礼不断!

【问题描述】

KIS云旗舰版,在BOS集成开发工具新增业务单据,复制已有单据模板,比如选择的是付款申请单,保存后,去新增单据,随便录入内容,保存提示:输入的文本长度超过了系统的限制,保存失败。


image.png



【解决方案】

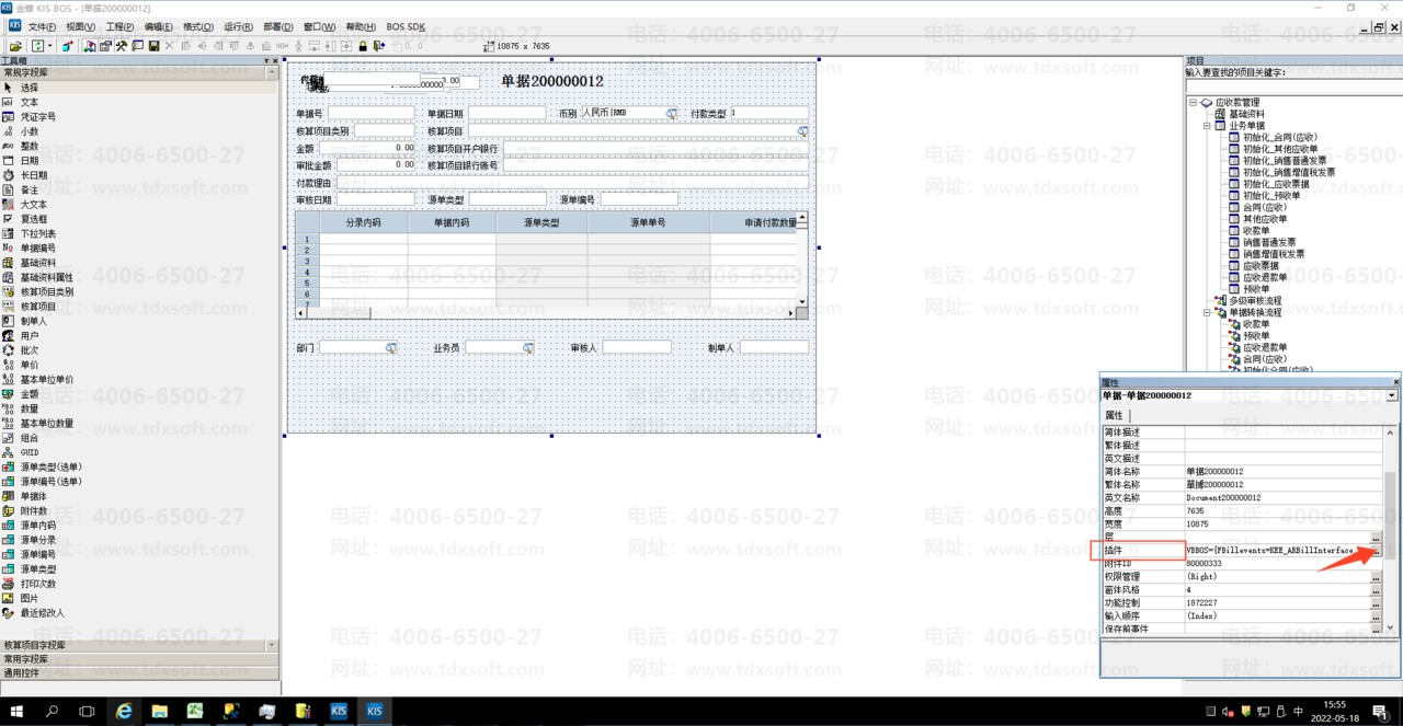
原因分析:复制系统已有单据的时候会把单据的插件也复制,但是插件是只对系统已有的单据有效的,复制出来的单据,没有清空插件设置,所以新增BOS单据会报错。


解决方案:复制后把插件都清空。操作步骤如图:


image.png


image.png


把全部插件前面的勾都去掉勾选即可。

image.png